Leiston

3 bedroom Property Let Agreed

£1,050 PCM

  • 3 bedroom
  • 1 bathroom
  • 1 reception

Key Features

  • Entrance Hall
  • Sitting Room
  • Kitchen/Diner
  • Cloakroom
  • Two First Floor Bedrooms
  • Family Bathroom
  • Second Floor Bedroom
  • Garden
  • Allocated Parking
  • pets considered

Description

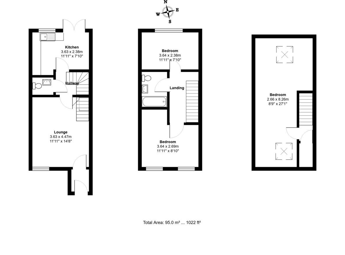
A three bedroom mid terraced three storey town house situated on the outer edge of the popular town of Leiston. The property has been well cared for by the current owners and consequently it is in very good condition throughout. Main benefits include double glazed doors and windows, gas fired central heating, pleasant views from the front aspect over fields, an enclosed rear garden and two allocated parking spaces. A front entrance door opens to the entrance porch with radiator and door which opens to the sitting room. The sitting room has a double glazed window to the front, radiator and useful understairs storage cupboard. There is an inner hall with stairs to the first and second floor and door to the cloakroom with low level toilet, wash basin, radiator and ceramic tiled flooring. The kitchen with dining area has a window and doors to the rear garden, a good range of base and wall mounted units with work surfaces over. There is a 1½bowl stainless steel sink with mixer tap, built in stainless steel oven with hob and extractor hood over. There is an integrated fridge/freezer, integrated slimline dishwasher and wall cabinet housing the gas fired boiler. To the first floor are two bedrooms, the front bedroom has two windows to the front with pleasant views and a radiator. The second bedroom has a window to the rear aspect and radiator. There is a bathroom comprising a panelled bath with shower over and glass screen, low level toilet, washbasin, radiator and ample tiling. To the second floor is a small landing with built in deep cupboard and the main bedroom with a 'Velux' window to the front with views to fields and further 'Velux' to the rear aspect. To the front of the property is a small area of garden. The rear garden is enclosed and mainly shingled with paving slabs for ease of maintenance. There is a timber garden shed and a rear gate that gives access to the two allocated parking spaces.

To appreciate fully the accommodation offered, early viewing is highly recommended.

LOCATION Leiston offers a good selection of shops and a supermarket that cater for all day to day needs and the town has primary and secondary schools along with a library and sports centre. Leiston is ideally located for access to the Suffolk Heritage Coast and to the coastal town of Aldeburgh which is home to the internationally famous music festival with most concerts being held at the Snape Maltings complex. Attractions of the surrounding area include the RSPB sanctuary at Minsmere and a variety of walks and cycle paths. Further facilities can be found at Saxmundham which has Waitrose and Tesco supermarkets and a railway station that provides a regular service via Ipswich to London (Liverpool Street).


Location


Floorplan

Floorplan

EPC

View EPC Document