Park Avenue, Saxmundham

3 bedroom Semi-detached house Sold STC

£199,000

  • 3 bedroom
  • 1 bathroom
  • 2 reception

Key Features

Description

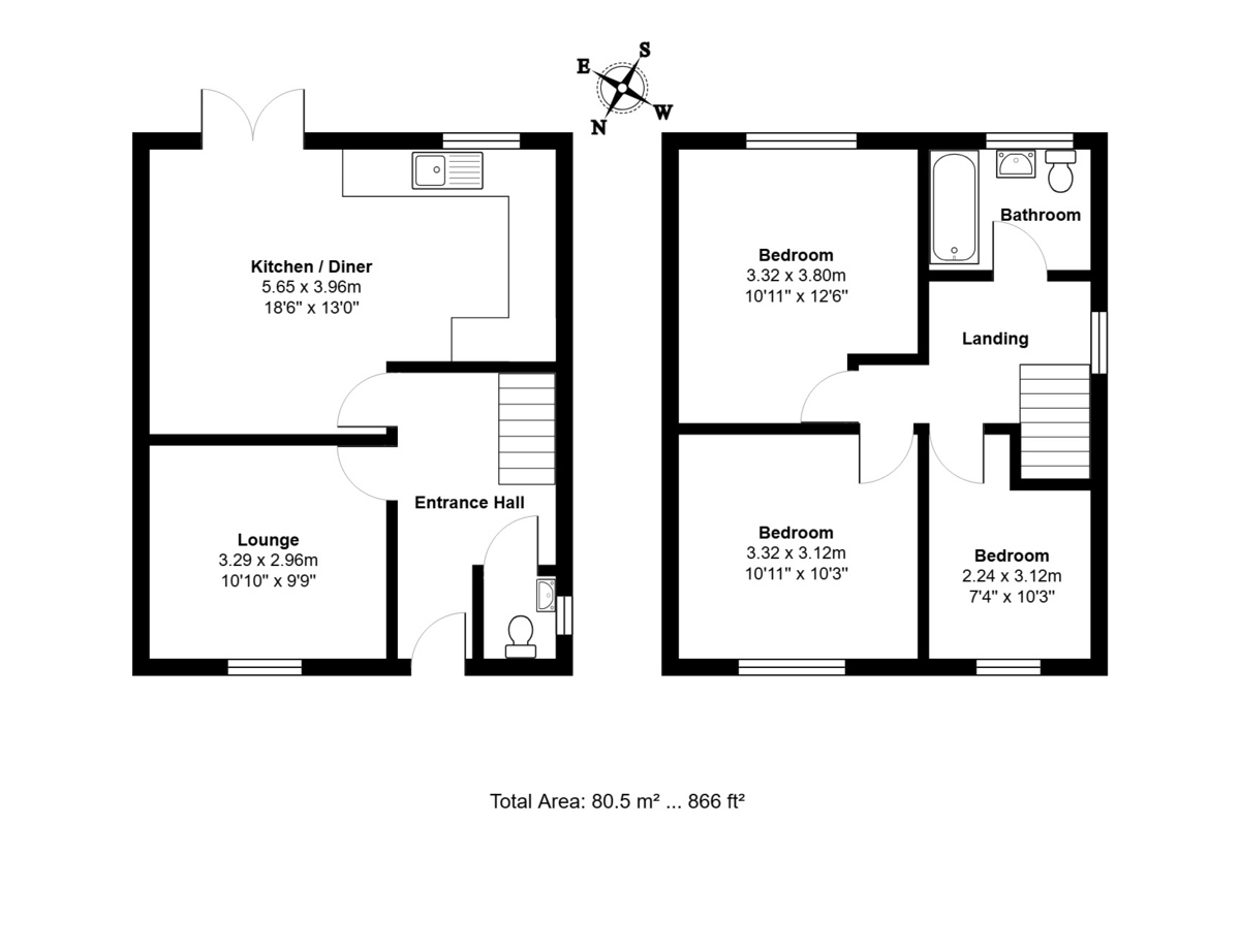
The Property Situated close to the town centre and train station, this three bedroom semi-detached home offers a well proportioned home designed for modern family living.

The heart of the home is a stylish open plan kitchen/dining area, thoughtfully designed to create a bright and sociable space. Double patio doors open directly onto the generous rear garden, seamlessly blending indoor and outdoor living, perfect for entertaining or enjoying warmer days.

Upstairs the property offers three well-proportioned bedrooms and a family bathroom, providing comfortable and practical accommodation.

Outside the garden offers excellent space for relaxation, play or further landscaping potential, making this a wonderful home in a sought-after Suffolk market town.

The Location Park Avenue is within easy reach of local amenities, transport links and the Suffolk coast. The property is well placed for local shops, pubs and countryside walks, as well as being a short drive from Aldeburgh, Snape Maltings and RSPB Minsmere.


Location


Floorplan

Floorplan

EPC

View EPC Document

Calculate Your Stamp Duty
£
Results
Stamp Duty To Pay:
Effective Rate:
Tax Band % Taxable Sum Tax

Similar Properties

Peasenhall, Saxmundham
For Sale

Smyth Close, Peasenhall, Saxmundham

4 Bed Detached house For Sale
Guide Price £595,000
Benhall, Saxmundham
For Sale

Aldecar Lane, Benhall, Saxmundham

2 Bed Detached house For Sale
Guide Price £425,000
Saxmundham
For Sale

Warren Avenue, Saxmundham

3 Bed Property For Sale
Guide Price £310,000