Framlingham, Woodbridge

2 bedroom Semi-detached house for sale

£285,000

  • 2 bedroom
  • 1 bathroom
  • 1 reception

Key Features

  • Two double bedrooms
  • Potential for en-suite to master bedroom
  • Sitting room with working wood burner
  • Spacious kitchen/dining room
  • Ground floor WC
  • Large rear garden with field views
  • Off-road parking for multiple vehicles
  • Walking distance to Framlingham town centre

Description

The Property A bright and well-presented two-bedroom semi-detached home, ideally positioned within walking distance of Framlingham Market Square. Offering spacious accommodation, generous off-road parking and a particularly large rear garden with field views beyond, this property will appeal to first time buyers, investors and those seeking a well-located Suffolk home.

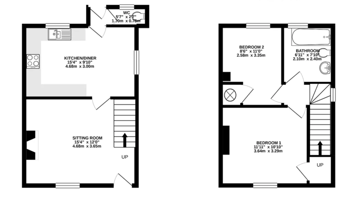
The property is entered directly into a welcoming sitting room, where a working wood burner set within a brick surround creates a cosy focal point. A large front-facing window allows excellent natural light, while stairs rise to the first floor with useful storage beneath.

To the rear, the kitchen/dining room spans the width of the property. Fitted with a range of white wall and base units with contrasting worktops, the kitchen provides ample workspace and storage, along with space for appliances. The dining area comfortably accommodates a table and chairs, making this an ideal everyday living space. A rear lobby leads to a convenient ground floor WC and provides access to the garden.

Upstairs, the principal bedroom overlooks the front and benefits from a deep storage cupboard which offers excellent potential to create an en-suite shower room (subject to necessary consents). A further double bedroom enjoys pleasant views over the rear garden and open fields beyond. The family bathroom comprises bath with electric shower over, WC and wash hand basin.

OUTSIDE

To the front, a generous driveway provides off-road parking for multiple vehicles.

A pathway to the side of the house leads to the substantial rear garden, which is arranged in sections. Immediately behind the property is a courtyard area with a large shed. The garden then extends to a well-maintained lawn with pathway leading to a vegetable plot and greenhouse at the far end. The property enjoys attractive open field views beyond.

The Location Framlingham is a highly desirable market town, best known for its magnificent twelfth-century castle and historic Market Hill. The town offers a superb range of independent shops, cafés, restaurants and a twice-weekly market selling local produce.


Location


Floorplan

Floorplan

EPC

View EPC Document

Calculate Your Stamp Duty
£
Results
Stamp Duty To Pay:
Effective Rate:
Tax Band % Taxable Sum Tax

Similar Properties

Hacheston, Woodbridge
Sold STC

The Street, Hacheston, Woodbridge

4 Bed Detached house Sold STC
Guide Price £595,000
Letheringham, Woodbridge
For Sale

Letheringham, Woodbridge, Letheringham, Woodbridge

2 Bed Property For Sale
Guide Price £270,000
Ufford, Woodbridge
For Sale

Crownfields, Ufford, Woodbridge

4 Bed Detached house For Sale
Guide Price £510,000